New Jomar
89 rue de Hedange
L-3841 Schifflange
Luxembourg
  +352 265 522 52

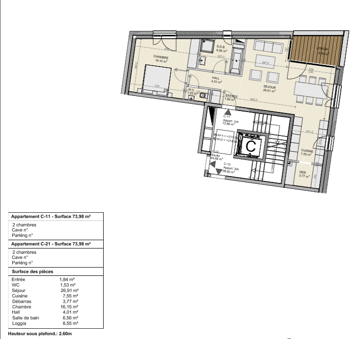
Appartement à louer 1 chambre à Belvaux

  • Type : Appartement
  • Chambre : 1
  • Surface habitable : +/-71,21 m2
  • Superficie terrain : +/- 0,00 Ares
  • Etage : 1
  • Localisation : Belvaux
  • Loyer : 1 120 €
  • Provision sur charges : 180 €
  • Dépôt de garantie : 2 240 €
  • Disponibilité : Mars 2018
  • neuf
  • Type de mandat : Exclusif
  • Classe énergétique : A A
  • Classe d'isolation thermique : A

Description

Sublime appartement : - Hall d'entrée - Séjour - Cuisine équipée - Salon - 1 chambre à coucher - Salle de bain - WC séparé - Débarras - Loggia - Cave - 1 emplacement de parking intérieur Nous vous invitons à nous rendre visite ou contacter l'un de nos commerciaux pour plus d'informations. Mr. Marc Risch 621210333 Mr. Jemp Moura 621216646 Rejoignez-nous sur Facebook : Newjomar Belval

Caractéristiques

Intérieur

Salonoui
Salle à mangeroui
Cuisineoui

Sanitaires

Salle de doucheoui
Toilette séparéeoui

Extérieur

Balconoui

Voiture

Garage1

Autres

Ascenseuroui
Caveoui
Buanderieoui

Localisation